Saat pertama kali pindah ke rumah baru, saya terpesona dengan keindahan interiornya. Namun, saat lampu tiba-tiba padam, saya menyadari pentingnya pemahaman diagram skema listrik rumah. Tanpa pengetahuan ini, betapa repotnya menghadapi masalah listrik yang sepele sekalipun. Mari kita telusuri lebih dalam pemanfaatan diagram ini.

Memahami Dasar-Dasar Listrik Rumah

Memahami dasar-dasar listrik rumah sangat penting, terutama dalam membaca dan menggunakan diagram skema listrik rumah. Diagram ini menggambarkan sirkuit listrik dengan jelas, membantu Anda memahami alur listrik, peralatan, dan komponen yang terlibat. Dengan pengetahuan ini, Anda dapat mengidentifikasi masalah listrik dan merencanakan instalasi dengan lebih baik.
Kenapa Diagram Skema itu Penting?

Diagram skema listrik rumah sangat penting karena memberikan panduan visual yang jelas untuk instalasi dan perbaikan listrik. Dengan adanya skema diagram, pengguna dapat memahami alur sistem kelistrikan, mengidentifikasi komponen, dan memastikan keselamatan saat bekerja dengan listrik. Ini juga membantu teknisi dalam mendeteksi masalah dengan lebih cepat.
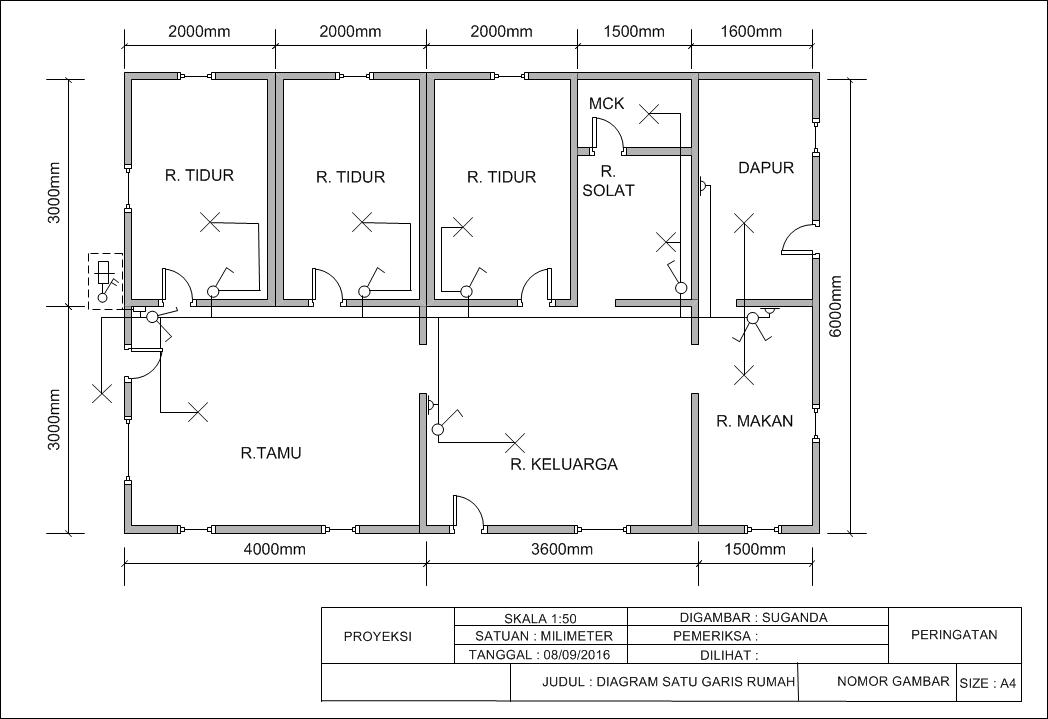
Elemen Utama dalam Diagram Skema Listrik Rumah
Dalam diagram skema listrik rumah, beberapa elemen utama harus diperhatikan. Ini termasuk sumber listrik, panel distribusi, serta jalur kabel yang menghubungkan berbagai perangkat. Setiap elemen berperan penting dalam memastikan aliran listrik yang aman dan efisien, serta memudahkan pemeliharaan dan perbaikan sistem kelistrikan rumah.
Cara Membaca dan Menginterpretasi Diagram

Membaca dan menginterpretasi diagram skema listrik rumah memerlukan pemahaman yang baik tentang simbol dan notasi yang digunakan. Perhatikan setiap komponen, seperti saklar, lampu, dan sumber listrik, serta hubungan antar elemen. Dengan memahami diagram ini, Anda dapat merencanakan instalasi listrik yang aman dan efisien di rumah.
Mitos dan Fakta Tentang Instalasi Listrik

Mitos seputar instalasi listrik sering kali membingungkan, terutama saat membahas diagram skema listrik rumah. Banyak orang percaya bahwa semua skema listrik itu rumit dan sulit dipahami. Faktanya, diagram ini dirancang untuk mempermudah pemahaman tentang bagaimana sistem listrik bekerja dan membantu dalam perawatan serta perbaikan yang aman.
Memahami skema ini adalah kunci untuk menghindari kesalahan fatal dalam instalasi listrik.
Memilih Komponen yang Tepat untuk Instalasi

Memilih komponen yang tepat untuk instalasi listrik rumah sangat penting untuk memastikan sistem berfungsi dengan baik. Mengacu pada diagram skema listrik rumah dapat membantu Anda memahami hubungan antar komponen. Pastikan untuk memilih kabel, saklar, dan pemutus arus yang sesuai untuk kelistrikan yang aman dan efisien.
Langkah-Langkah Membuat Diagram Skema Listrik

Untuk membuat diagram skema listrik rumah, langkah pertama adalah menggambar denah ruangan. Selanjutnya, tentukan lokasi setiap perangkat listrik seperti lampu dan soket. Setelah itu, gambarlah jalur kabel yang menghubungkan semua komponen. Jangan lupa untuk menandai setiap elemen dengan jelas, sehingga diagram mudah dipahami dan diimplementasikan.
Kesalahan Umum saat Membaca Skema Listrik

Ketika membaca diagram skema listrik rumah, sering kali terjadi kesalahpahaman yang dapat berakibat fatal. Banyak orang melewatkan detail penting seperti simbol dan warna kabel, yang merupakan kunci untuk memahami alur listrik. Mengabaikan petunjuk pada skema dapat menyebabkan kesalahan pemasangan, bahkan bahaya kebakaran.
Oleh karena itu, penting untuk memahami setiap elemen dalam diagram skema listrik rumah dengan seksama.
Tips untuk Instalasi Listrik yang Aman

Untuk instalasi listrik yang aman, mulailah dengan memahami diagram skema listrik rumah. Pastikan Anda mengikuti petunjuk pada skema ini saat menentukan posisi kabel dan saklar. Gunakan alat pelindung diri dan pastikan semua sambungan terisolasi dengan baik. Dengan langkah-langkah ini, Anda dapat mengurangi risiko kecelakaan listrik di rumah.
Mengapa Perawatan Berkala itu Krusial?

Perawatan berkala pada skema diagram listrik rumah sangat krusial untuk memastikan sistem kelistrikan berfungsi dengan baik. Dengan memeriksa dan merawat diagram ini secara rutin, Anda dapat mencegah masalah serius, meningkatkan efisiensi energi, dan memastikan keselamatan penghuni rumah. Keberadaan skema yang jelas memudahkan identifikasi dan pemecahan masalah bila terjadi gangguan.
Menguasai diagram skema listrik rumah adalah langkah krusial untuk instalasi yang aman dan efisien. Memahami komponen dasar, alur arus listrik, serta prosedur pemasangan yang tepat dapat mencegah kesalahan fatal. Dengan pengetahuan ini, Anda dapat memastikan sistem kelistrikan rumah berfungsi optimal dan meminimalkan risiko kebakaran.